Description
                
                  
                    
                    More
                    Less
                  
                  
                
              
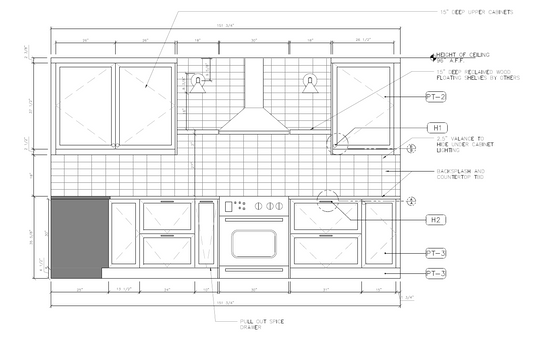
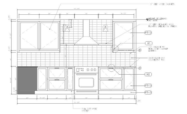
              This service will utilize one of our local, certified contractors who are familiar with our cabinet system. They will visit your space to conduct a thorough analysis of your Construction Plans provided by your designer.
Site visits most often last 1 hour and will include the following services:
- A thorough check measure of your room.
- A review of your cabinetry clearances and setbacks.
- A detailed analysis of your appliance specifications and cabinetry openings.
- A review of your order list to ensure accuracy.
- An accurate quote for the installation of your cabinets.
After purchasing your onsite assessment, we will have one of our certified contractors reach out to you directly to schedule your visit.
Your designer will provide you with your Construction Plans and cabinet parts list prior to your onsite assessment taking place. Your contractor will not be bringing these plans, so it will be important to have them on hand for your meeting.
After this service is provided, your designer will make the recommended changes according to the notes provided during this meeting.
It is important to note that this contractor will not be taking financial responsibility should your cabinetry not fit in any way. This service is designed to act as a measure to greatly reduce the chances of something not fitting, but does not guarantee the accuracy of your order.
Description
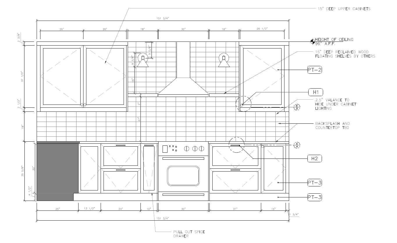
This service will utilize one of our local, certified contractors who are familiar with our cabinet system. They will visit your space to conduct a thorough analysis of your Construction Plans provided by your designer.
Site visits most often last 1 hour and will include the following services:
- A thorough check measure of your room.
- A review of your cabinetry clearances and setbacks.
- A detailed analysis of your appliance specifications and cabinetry openings.
- A review of your order list to ensure accuracy.
- An accurate quote for the installation of your cabinets.
After purchasing your onsite assessment, we will have one of our certified contractors reach out to you directly to schedule your visit.
Your designer will provide you with your Construction Plans and cabinet parts list prior to your onsite assessment taking place. Your contractor will not be bringing these plans, so it will be important to have them on hand for your meeting.
After this service is provided, your designer will make the recommended changes according to the notes provided during this meeting.
It is important to note that this contractor will not be taking financial responsibility should your cabinetry not fit in any way. This service is designed to act as a measure to greatly reduce the chances of something not fitting, but does not guarantee the accuracy of your order.
The Process
We know that having the right team is the key to a successful project. Our New Build or Renovation services give you access to a professional interior designer, who can design your dream kitchen, and a project manager, who oversees all drawings and handles ordering, delivery and installation support to ensure your vision is fully realized.
Discovery
CONSULT + COLLABORATE
INVESTMENT REVIEW
CHECK MEASURE
Design Refinement
ORDER CONFIRMATION AND Submission
You May Also Like
- Choosing a selection results in a full page refresh.


 
										 
										 
										 
   
   
  


