Description
More
Less
Let's get started!
This deposit is your first payment toward your new Swede millwork. Upon paying your deposit the following steps will be initiated:
1. Onsite Analysis
Depending on your preference; you, your contractor or one of our own representatives will visit your home to conduct a detailed measurement and assessment of your plan. A thorough analysis will be performed to ensure that the proposed kitchen design will fit your space and the appropriate materials are being allocated.
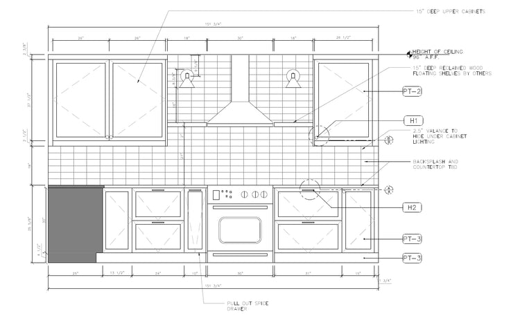
2. Construction Drawings
Once your onsite analysis has been completed, we will produce a set of construction drawings with detailed elevations and plan views of your millwork. We will provide you with a set of these drawings and if any changes or additions are required, an updated final price will be communicated. Pricing is subject to change due to onsite changes, or any millwork or trim details that are added during this phase.
Once you are satisfied with your construction drawings and are prepared to move forward with your plans, you can submit your second payment. Upon receiving this second payment, Swede will coordinate the manufacturing, procurement and scheduling of your material delivery.
This deposit is non-refundable and accounts for the onsite analysis and creation of your construction drawings.
The deposit amount will be deducted from your the full invoice as all of our projects include this design pricing. Swede reserves the right to adjust your final millwork pricing if additional materials are required based on our onsite inspection, or if site conditions are different than those accounted for within our original quoting process.
By paying this deposit, you are agreeing to the above terms.
Once this deposit is received, we will reach out to you to coordinate next steps!
We sincerely appreciate your business and look forward transforming your space!
Description
Let's get started!
This deposit is your first payment toward your new Swede millwork. Upon paying your deposit the following steps will be initiated:
1. Onsite Analysis
Depending on your preference; you, your contractor or one of our own representatives will visit your home to conduct a detailed measurement and assessment of your plan. A thorough analysis will be performed to ensure that the proposed kitchen design will fit your space and the appropriate materials are being allocated.
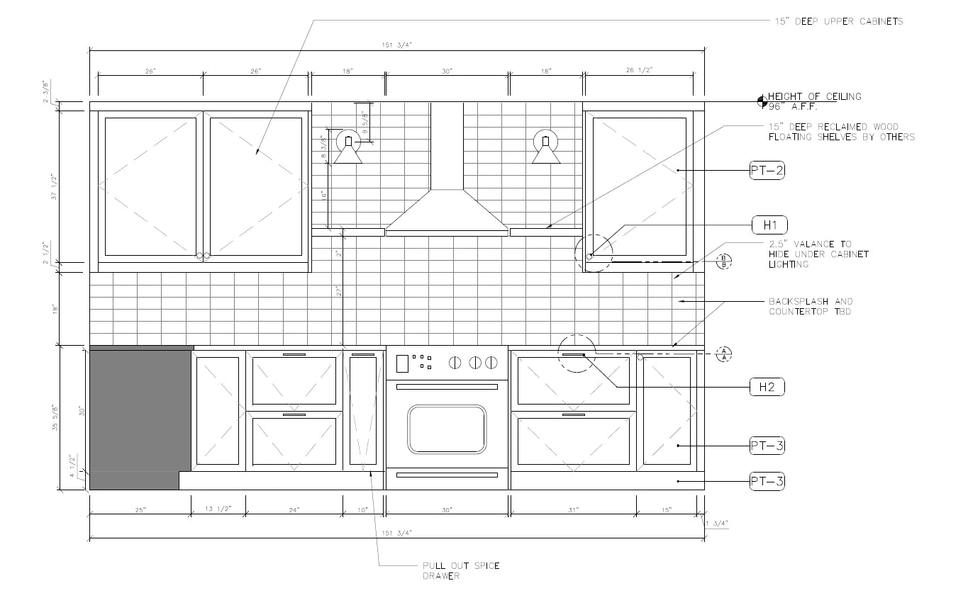
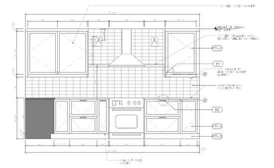
2. Construction Drawings
Once your onsite analysis has been completed, we will produce a set of construction drawings with detailed elevations and plan views of your millwork. We will provide you with a set of these drawings and if any changes or additions are required, an updated final price will be communicated. Pricing is subject to change due to onsite changes, or any millwork or trim details that are added during this phase.
Once you are satisfied with your construction drawings and are prepared to move forward with your plans, you can submit your second payment. Upon receiving this second payment, Swede will coordinate the manufacturing, procurement and scheduling of your material delivery.
This deposit is non-refundable and accounts for the onsite analysis and creation of your construction drawings.
The deposit amount will be deducted from your the full invoice as all of our projects include this design pricing. Swede reserves the right to adjust your final millwork pricing if additional materials are required based on our onsite inspection, or if site conditions are different than those accounted for within our original quoting process.
By paying this deposit, you are agreeing to the above terms.
Once this deposit is received, we will reach out to you to coordinate next steps!
We sincerely appreciate your business and look forward transforming your space!
The Process
We know that having the right team is the key to a successful project. Our New Build or Renovation services give you access to a professional interior designer, who can design your dream kitchen, and a project manager, who oversees all drawings and handles ordering, delivery and installation support to ensure your vision is fully realized.
Discovery
CONSULT + COLLABORATE
INVESTMENT REVIEW
CHECK MEASURE
Design Refinement
ORDER CONFIRMATION AND Submission
You May Also Like
- Choosing a selection results in a full page refresh.



